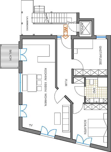
Wohnung 3 - Obergeschoss - bereits vermietet
Wohnungsgröße: 86,07 m²
Mietkonditionen:
| Mietkonditionen: | |
| Grundmiete mit Heizung (ohne.WW) | ---,-- € pro Monat |
| Nebenkostenvorauszahlung | --,-- € pro Monat |
| ---,-- € pro Monat | |
| Bezugsfertig | vermietet |
| Kaution in Höhe von 2 Nettomieten: | ----,-- € |
