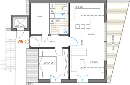
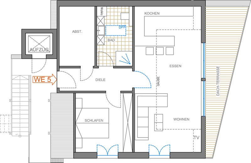
Wohnung 5 - Penthouse-Wohnung - bereits vermietet
Wohnungsgröße: 65,89 m²
Mietkonditionen:
| Mietkonditionen: | |
| Grundmiete mit Heizung (ohne.WW) | ---,-- € pro Monat |
| Nebenkostenvorauszahlung | --,-- € pro Monat |
| ---,-- € pro Monat | |
| Bezugsfertig | vermietet |
| Kaution in Höhe von 2 Nettomieten: | ----,-- € |



